Skip to main content
Tom Shields Realty Inc.
Property Management & Real Estate
Commercial
Residential
Property Management
Rentals
Contact
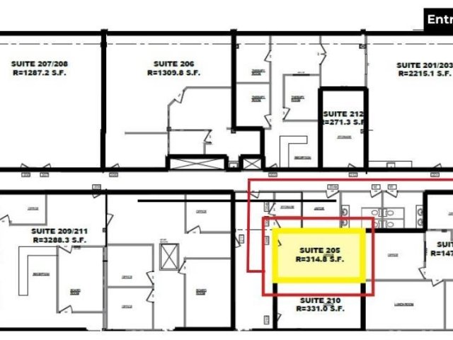
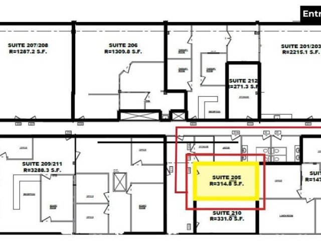
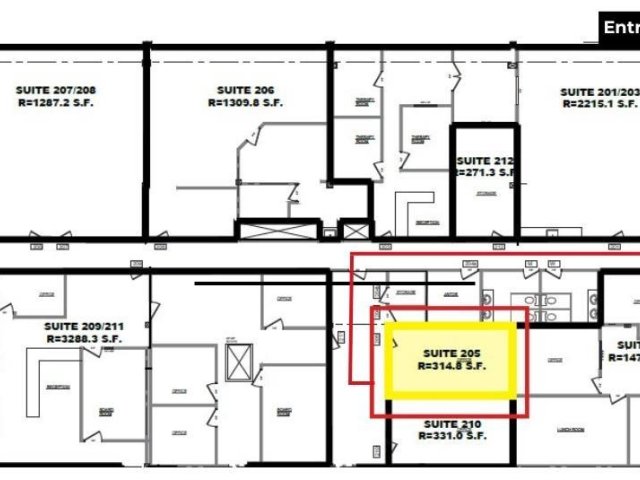
Commercial For Lease - Office - $556
Contact a Realtor
Property
Name
*
Email
*
Message
*
CAPTCHA
Are you human?
What code is in the image?
*
Enter the characters shown in the image.